Neubau eines Wohnhauses Reinbek

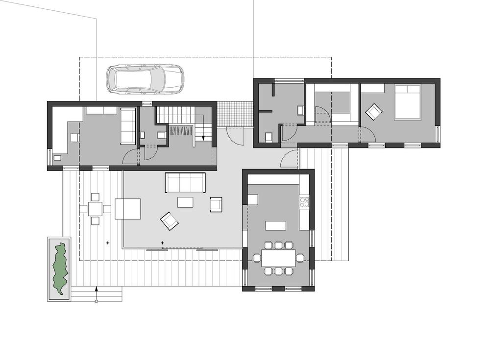
Das Grundstück liegt am Rande eines Naturschutzgebietes. Das vorgeschlagene eingeschossige Einfamilienhaus verbindet sich mit seinen drei Riegeln mit den Funktionsbereichen Arbeiten, Kochen und Schlafen und den dazwischen liegenden raumhoch verglasten Wohnbereichen auf ideale Weise mit dem Traumgrundstück am Rande eines Naturschutzgebietes in Reinbek.
Über allen inneren und äußeren Wohnbereichen schwebt eine Flachdachscheibe, die gemeinsam mit der großen Terrasse die Grenze zwischen Innen und Außen aufhebt.

Bauherr: Privat

Projektumfang: 180m² NF

Planung: LP 1-3

Projektzeitraum: 2012

Baukosten: 380.000,- €

Mitarbeiter: Ulrike Bergmann

Standort: Reinbek