Wohnhaus Lokstedt

Für ein privates Wohnhaus in Hamburg-Lokstedt war eine Erweiterung geplant, um insgesamt vier Wohneinheiten für die weitverzweigte Familie des Bauherrn auf einem Grundstück zu realisieren. Hierfür wäre, neben einem Umbau des Bestands, eine Erweiterung notwendig.
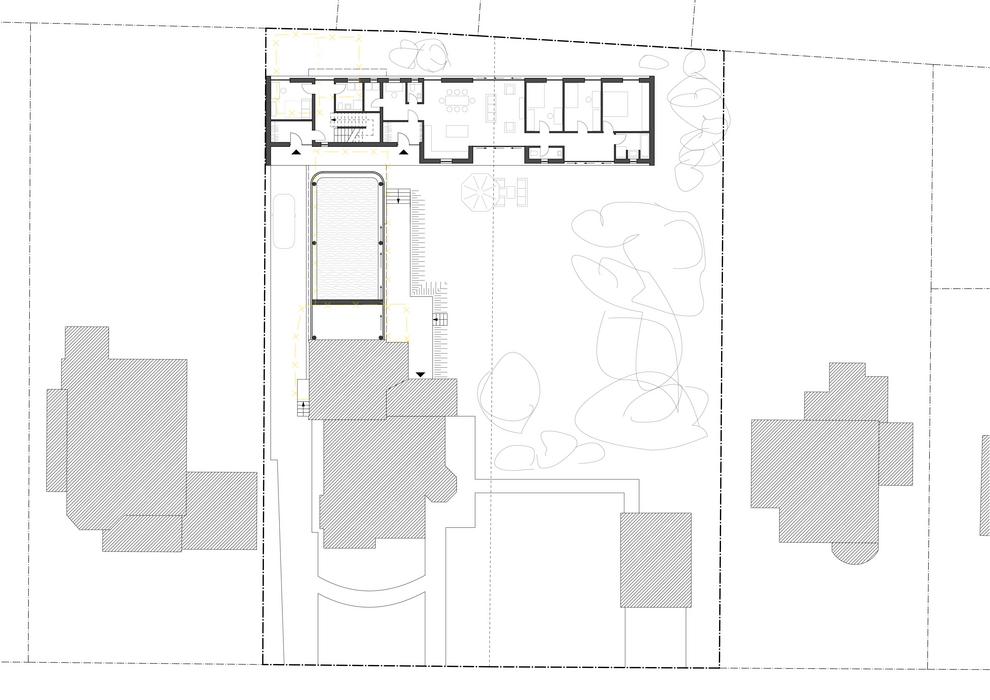
Dabei war die Errichtung eines zweiten Hauses in der baulich vorgegebenen Straßenflucht ausdrücklich nicht gewünscht; befindet sich dort doch das von den Eigentümern liebevoll gepflegte Herzstück des Gartens. Stattdessen sollte sich der Anbau um diesen Garten herum organisieren.
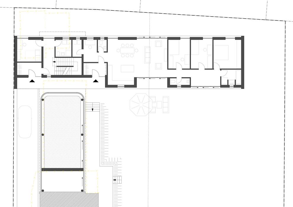
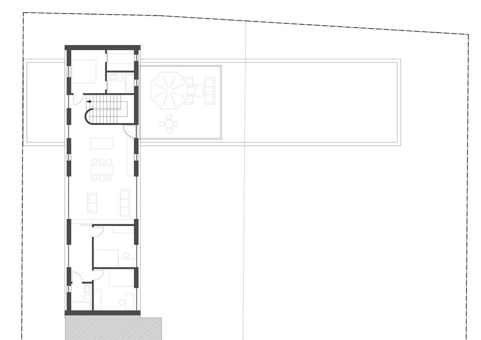
Um zwei weitere Wohneinheiten zu realisieren, wurde ein Baukörper aus zwei aufeinanderliegenden, eingeschossigen Quadern entwickelt. Der hintere ist ebenerdig und schließt den Garten nach hinten ab. Ihm liegt im rechten Winkel der seitliche Quader auf, der den Bestandsbau nach hinten verlängert und die Gebäude zu einer Klammer zusammenfasst. Der hierunter entstehende Freiraum wird zur Unterbringung des Pools und für die Erschließungszone der neuen Wohnungen genutzt.
Ober-, Unter- und Wangenseiten der Quader formieren je einen Rahmen, sind also geschlossen und weiß verputzt. Öffnungen sowie Rücksprünge sind nur in den Vorder- und Rückseiten vorhanden, die gegenüber dem Rahmen leicht zurückspringen und mit karbonisiertem Holz verkleidet sind. In dieser Materialität – weiße Wandflächen, dunkles Holz – wird der Farbkanon des Bestands fortgeschrieben und eigenständig weiterentwickelt.

Bauherr: privat

Projektumfang: 830 m²

Planung: LP 1-3

Projektzeitraum: 2023

Mitarbeiter: Moritz Laros