Wohn- und Geschäftshaus in Poppenbüttel

In einem zersiedelten Vorort Hamburgs zeigt sich ein heterogenes Bild aus Einfamilienhäusern der 1920er-70er, sowie jüngeren Projekten zur Nachverdichtung, wobei Zustand und Wertigkeit beider Elemente stark variieren und wenige Bezüge zueinander aufweisen.
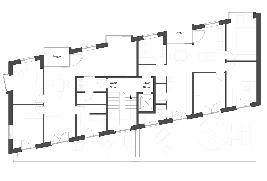
Auf dem schmalen Eckgrundstück in Form eines rechtwinkligen Trapezes war ein Stadtbaustein mit größtmöglicher Fläche zu entwickeln. In Verlängerung der vorhandenen Verdichtungsachse sollte der Bezug klar in Richtung der höheren Neubebauung gehen. Es wurden daher eine 4- und eine 3-geschossige Variante geplant.
Aus der Grundstücksform wurde ein gestalterisches Thema entwickelt, indem das Gebäude aus zwei ineinander geschobenen Kuben zu bestehen scheint: ein Parallelogramm und ein Rechteck bilden unterschiedlich hohe Prismen aus. Der niedrigere Baukörper scheint sich dabei in den höheren zu schieben und bildet wie von selbst die Dachterrasse für das Staffelgeschoss.
Dieses Thema der ineinander verschnittenen Körper zeigt sich auch in der Fassade, wobei die nach Südwesten in die Straße gedrehten Erker und Loggien das Licht der Abendsonne einfangen und in die Wohnungen leiten.

Projektumfang: 885 m²

Planung: LP 1-3

Projektzeitraum: 2022

Mitarbeiter: Moritz Laros

Standort: Hamburg-Poppenbüttel