Kreissparkasse Buchholz

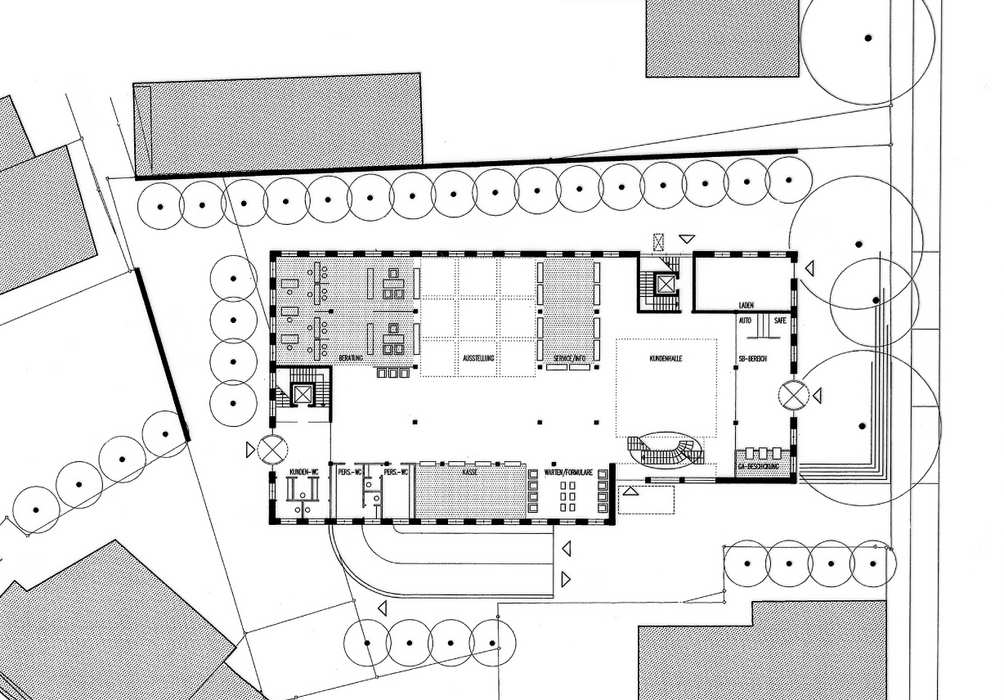
Der Neubau der Kreissparkasse bildet das mäandrierende Band von Büro- und Verwaltungsräumen, das sich um zwei Innenhöfe schlingt das Abbild für die verschlungenen Wege des Geldes in der Finanzwelt. Einer der Höfe (Haben) gibt als Kassenhalle den Luftraum über alle Geschosse frei, der zweite Hof (Soll) ist über dem Erdgeschoss mit einem Glasdach versehen.

Die Fassaden des kompakten Baukörpers sind aus rotem Ziegelstein mit eingelegten Lisenen geplant.

Bauherr: Kreissparkasse Buchholz

Projektumfang: 4.081m²

Planung: WBW

Projektzeitraum: 1995

Baukosten: 10.200.000,- €

Standort: Buchholz i. d. Nordheide