Grundschule Richardstraße

Die 2-zügige Grundschule aus den Fünfziger Jahren soll auf Grund ihres schlechten baulichen Zustandes abgerissen und durch einen 3-zügigen Neubau mit Ganztagesbetrieb ersetzt und erweitert werden.

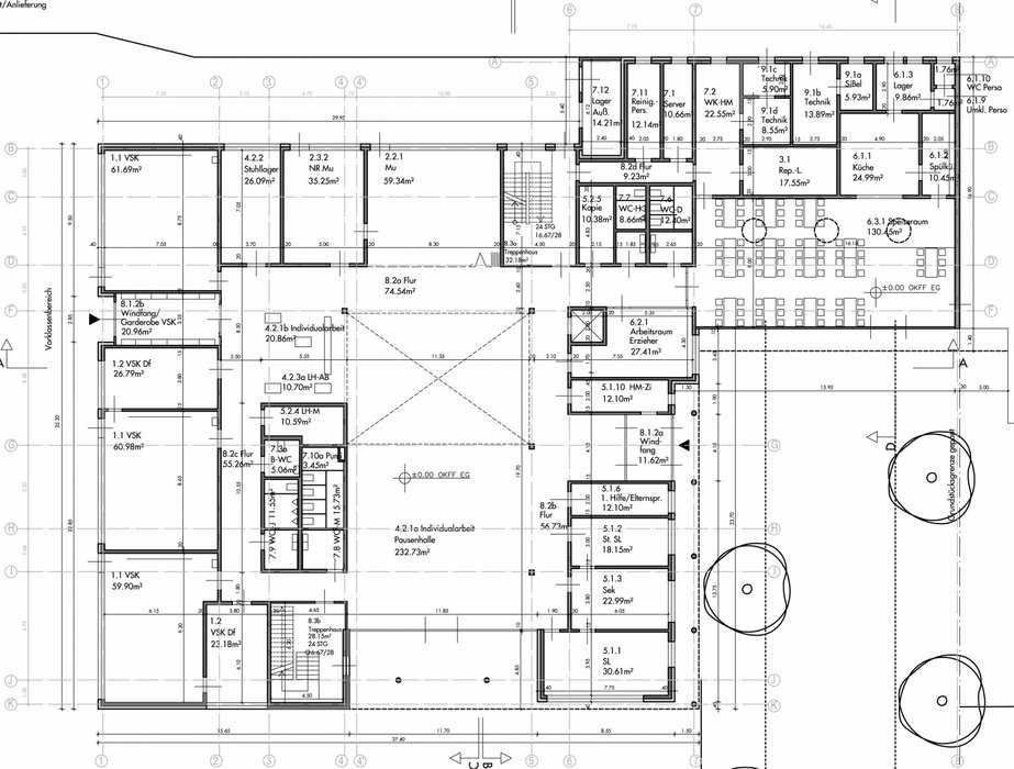
Die neue 3-geschossige Schule wird als kompakter Baukörper in den Grundstücksbereich hinter der bestehenden Schule gesetzt. An der Nordostseite schließt sich ein 1-geschossiger Ganztagesbereich mit Aufwärmküche, Nebenräumen der Schule und Speiseraum an. Er dient als Bindeglied und Übergang zur Kita.

Durch die Stellung des Neubaus kann auf Zwischenbaumaßnahmen verzichtet werden. Der Schulhofbereich wird aus dem Blockinnenbereich an die Richardstraße verlagert, wodurch die Anwohner vom Lärm entlastet werden. Die Erschließung der Schule von der Richardstraße aus bleibt in ihrer Lage unverändert.

Eine zentrale Pausenhalle, die auch als Aula genutzt wird, bildet die Mitte der Schule. Sie vermittelt zwischen den Außenräumen und verknüpft die zentralen Funktionen im Erdgeschoss. Ein  Atrium bindet die in den Obergeschossen gelegenen Unterrichtsbereiche an und schafft  Begegnungsflächen und Sichtbezüge zwischen den Bereichen.

Die Jahrgangstufen und Fachklassen sind jeweils über Eck zu Gruppen zusammengefasst. Offen gestaltete Lernbereiche bilden den Mittelpunkt jedes Jahrgangs und werden über das Atrium belichtet.

Im Erdgeschoss befindet sich auf der Nordwest Seite der geschützte Bereich der Vorschulklassen. Sie verfügen über direkte Ausgänge ins Freie und bilden eine kleine Schule in der Schule.

In Zusammarbeit mit EGL Hamburg Landschaftsarchitekten

Bauherr: SBH Schulbau Hamburg

Projektumfang: 5.592m²

Planung: LPH 8-9

Projektzeitraum: 2012 - 2017

Baukosten: 9.500.000€

Fotos: Andreas Rowold, Dirk Alten

Mitarbeiter: Thomas Freitag; Sandra Haufe

Standort: Hamburg-Hohenfelde